Centrum Nieruchomości
ul. Osmolińska 2a,
98-220 Zduńska Wola
Ewelina Berensztajn
tel.668 837 996
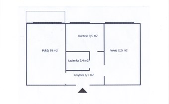
2 pokoje 55,50 m2 5 315,32 zł/m2
295 000 zł




Program dla biur nieruchomości Galactica Virgo