Łódź, Bałuty, Radogoszcz

Mieszkanie na sprzedaż

3 pokoje 4 piętro 62,05 m2 5 995,17 zł/m2

372 000 zł

rezerwacja
Ewelina Berensztajn

Właściciel

Opis nieruchomości

Idealna propozycja dla rodziny. Mieszkanie z potencjałem, do własnej aranżacji.

Przestronne, słoneczne, rozkładowe 3 pokojowe mieszkanie na Radogoszczu Wschodzie. Świetna lokalizacja.

Mieszkanie dobrze skomunikowane - w pobliżu dobrze rozwinięta infrastruktura handlowo-usługowa, przystanki komunikacji miejskiej - autobusowe i tramwajowe, blisko autostrady A1 i A2. Niedaleko tereny zielone - Arturówek. 

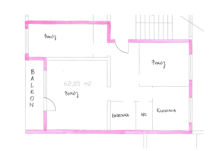
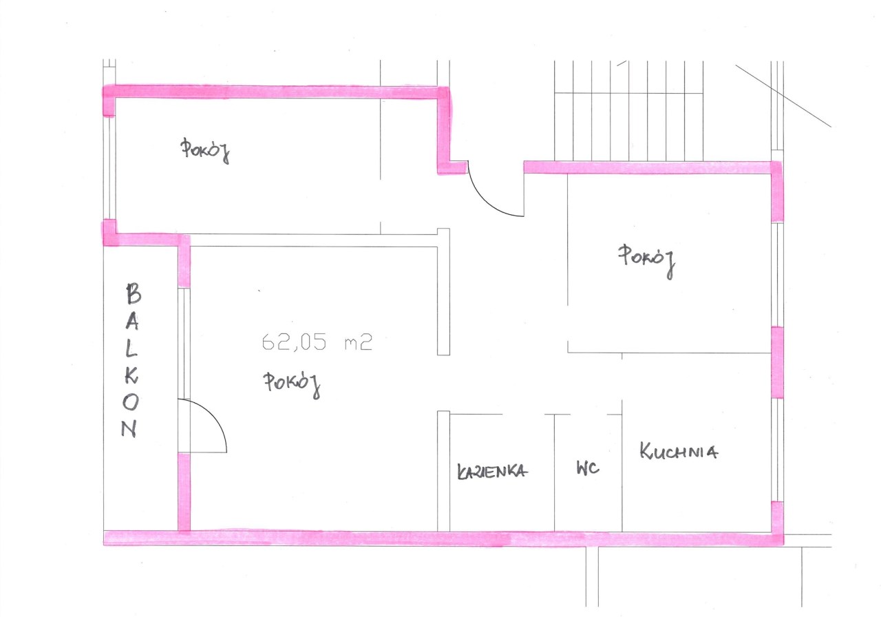
W pełni rozkładowe mieszkanie o powierzchni 62,05 mkw składające się z trzech pokoi, kuchni, łazienki, wc i przedpokoju oraz balkonu, położone na 4 piętrze w bloku z lat 80-tych. Właściciel lokalu ma możliwość korzystania z piwnicy. Mieszkanie w stanie technicznym do generalnego remontu. Okna drewniane, jedno okno PCV. Mieszkanie nieumeblowane. W przedpokoju miejsce na dużą szafę lub garderobę. 

Rozkład i powierzchnia mieszkania oraz lokalizacja w pobliżu terenów zielonych, blisko sklepów, przedszkoli, szkoł i innych usług, z dobrą komunikacją MPK sprawiają, że jest to idealne mieszkanie dla rodziny.

Opłaty dla spółdzielni ok. 778 zł 

Mieszkanie wolne, do sprzedaży "od zaraz"

• wskaźnik rocznego zapotrzebowania na energię użytkową - EU=119,49 kWh/(m2*rok)
• wskaźnik rocznego zapotrzebowania na energię końcową - EK=159,42 kWh/(m2*rok)
• wskaźnik rocznego zapotrzebowania na nieodnawialną energię pierwotną - EP=128,90 kWh/(m2*rok)
• udział odnawialnych źródeł energii w rocznym zapotrzebowaniu na energię końcową - UOZE=0,00%
• jednostkowa wielkość emisji CO2 - ECO2=0,0540 t CO2/(m2*rok)

ZAPRASZAMY DO OBEJRZENIA!!!


Uwaga dane o ofercie mogą odbiegać od stanu faktycznego i prawnego - biuro nie odpowiada za niezgodność danych z rzeczywistością. Oferta może być w danym momencie nieaktualna. Prosimy o telefon

Nota prawna

Opis oferty zawarty na stronie internetowej sporządzany jest na podstawie oględzin nieruchomości oraz informacji uzyskanych od właściciela, może podlegać aktualizacji i nie stanowi oferty określonej w art. 66 i następnych K.C.

Szczegóły

Symbol oferty EXP-MS-10194
Powierzchnia 62,05 m²
Powierzchnia użytkowa 62,05 m²
Liczba pokoi 3
Piętro 4
Rodzaj budynku blok
Technologia budowlana płyta
Stan lokalu do generalnego remontu
Stan prawny Odrębna własność lokalu
Mies. czynsz admin. 778 PLN
Okna częściowo wymienione
Balkon jest
Liczba balkonów 1
Rok budowy 1985
Gaz jest
Woda tak - miejska
Dojazd asfalt
Otoczenie zabudowa wielorodzinna
Ogrzewanie miejskie
Usytuowanie dwustronne

Podobne oferty

Mieszkanie na sprzedaż - Łódź, Górna, Kurczaki, ul. Kurczaki
mieszkanie na sprzedaż - Łódź, Górna, Kurczaki, ul. Kurczaki

PRO-MS-10962

Łódź, Górna, Kurczaki,…
mieszkanie na sprzedaż

2 pokoje 50,20 m²

350 000
6 972,11 zł/m2
nowa oferta
Dodaj
do notatnika
Mieszkanie na sprzedaż - Łódź, Bałuty, Radogoszcz
mieszkanie na sprzedaż - Łódź, Bałuty, Radogoszcz

PFT-MS-4381

Łódź, Bałuty, Radogoszcz
mieszkanie na sprzedaż

2 pokoje 42,42 m²

350 000
8 250,83 zł/m2
rezerwacja
Dodaj
do notatnika
Mieszkanie na sprzedaż - Łódź, Górna, Kurczaki, KURCZAKI
mieszkanie na sprzedaż - Łódź, Górna, Kurczaki, KURCZAKI

PRO-MS-10946

Łódź, Górna, Kurczaki,…
mieszkanie na sprzedaż

2 pokoje 50,16 m²

350 000
6 977,67 zł/m2
nowa oferta
Dodaj
do notatnika
Mieszkanie na sprzedaż - Łódź, Śródmieście, PIOTRKOWSKA/MICKIEWICZA
mieszkanie na sprzedaż - Łódź, Śródmieście, PIOTRKOWSKA/MICKIEWICZA

PRO-MS-10944

Łódź, Śródmieście,…
mieszkanie na sprzedaż

3 pokoje 59,64 m²

450 000
7 545,27 zł/m2
nowa oferta
Dodaj
do notatnika
PLN
PLN
PLN
PLN
PLN
PLN
PLN
%
PLN
PLN
PLN

PLN

Dane:

PLN
%

Wynik:

PLN
pierwsza rata
ostatnia rata

Napisz do nas

Proszę wypełnić to pole
Proszę wypełnić to pole
Proszę wypełnić to pole
Proszę wypełnić to pole
Trwa wysyłanie...

Ta strona wykorzystuje pliki cookies w celach statystycznych oraz w celu dostosowania naszych serwisów do indywidualnych potrzeb klientów. Zmiany ustawień dotyczących plików cookie można dokonać w dowolnej chwili modyfikując ustawienia przeglądarki. Korzystanie z tej strony bez zmian ustawień dotyczących cookies oznacza, że będą one zapisane w pamięci urządzenia.

rozumiem